Description
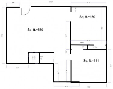
811 sq/ft of Retail Office Space available for lease, conveniently located on Morgan Ave. Between North Green River Rd and Burkhardt Rd. Location is fully fenced with gate code access.
Rent $575 (plus any CAM charges).Tenant will be responsible for all utilities.
Space includes
Common area: 550 S...










